Jeg går og arbejder på at udvide mit Boyu 58 Liter
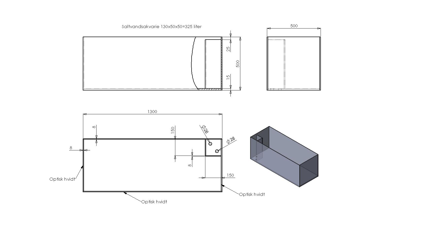
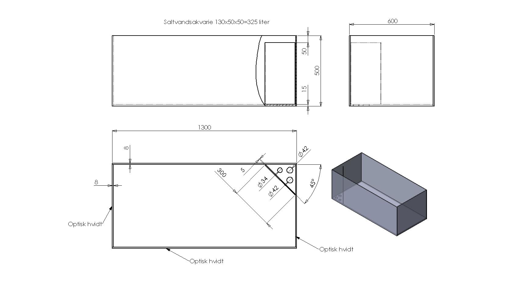
lad mig starte med akvariet. det skal være denne størelse da jeg i forvejen har et bord og ikke plads til større. hvad tykkelse skal diverse glas f.eks. være ??
Hvilken afstand fra overkant akvarie til overløb ??
Størrelse på overløb og overløbsglasset ??
hvor tyk skal glasset i akvariebunden være ??
hvordan skal samlingerne overlappe hinanden, jeg mener skal sider placeres ovenpå bunden eller skal de udvendig på bunden, o.s.v.
kommentarer ønskes til min tegning
Venlig hilsen
Stig
det er vrkelig en fornøjelse at læse på et forum som dette.
Akvarie.
Hoveakvarie: 390 liter 130x60x50 (LxDxH) weiss glas i front og venstre side. overløb i højre side.
Sump: 64 liters sump.
Levende sten: 25 kg levende.
Døde sten: 10 kg.
Levende sand: 12 kg.
Akvariebord: home made af undertegnede
Teknik.
Lys: er en ATI Powermodul med 6x54 watt 3 stk. ATI blue special og 3 stk. ATI blue+ HAR SKIFTET TIL GIESEMANN SPECTRA.
Skummer: ATB Nano skimmer 1000L med ehim 1250 pumpe
Returpumpe: RED DRAGON MINI 3500
Cirkulation 1: 1 stk. WORTECH MP40, 1 stk. WORTECH MP10 (er meget tilfreds dog larmer de lidt for meget, når power bliver skruet helt op)
Cirkulation 2: 2 Stk. Tunze 6025 som er tunet op til 6045
Phosphat filter: Deltec 509 med rohwaphos HAR FJERNET DETTE OG KØRER NU UDEN.
Varme Legeme: MP 300 watt digitalt ( super godt varme legeme ) FJERNET DET DA HQI GIVER RIGELIGT




