Regler og Retningslinjer Læs her
Sejeulkis 530L's (opdateret 8. August)
- sejeulki
- Dragefisk

- Reactions: 0
- Indlæg: 742
- Tilmeldt: fre 30. nov 2007 22:52
- 18
- Postnummer: 9000 Aalborg
- Geografisk sted: Aalborg
Sejeulkis 530L's (opdateret 8. August)
Ja så er det blevet min tur til vise mit 530L's projekt. Meningen med denne tråd er, at jeg skriver omkring mit akvarieprojekt. Løbende vil jeg narutligvis komme med opdateringer. Hele projektet skulle gerne være færdig iløbet af en måned. Pt. hat jeg nemlig et 490L akvarie til at køre med mine fisk/koraller osv., og kæresten syntes ikke det er sjovt at have et 490L og et 530L stående samtidig i en 60 kvm lejlighed. Da det er mit første 'gør-det-selv' projekt, og da jeg ikke har meget erfaring med saltvand, vil jeg meget gerne have løbende kommentar/råd/hjælp herindefra. Der er defor mange billeder af forskellige dele, da det jo er væsentligt nemmere at få diskuteret tingende når man kan se et billede af dem.
Info:
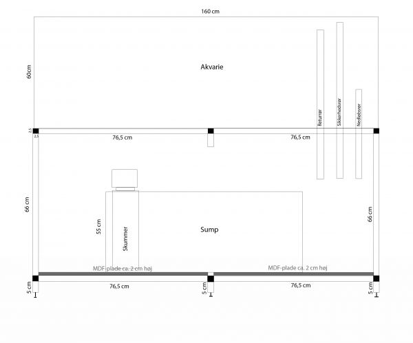
Selve akvariet er et 530L's akvastabil (http://www.tropefisk.dk/shop/effectline ... 7222p.html), Mål (l x b x h): 160x55x60 cm. Selve bordet er lavet at porsa aluminiumsrør (akvarieudstyr.dk). Stellet er blevet malet med hvid spraymaling. Rundt om aluminiumsstellet skal der påsættes MDF-plader.
Selve møblet kommer til at ligne det her: http://www.koralrevet.dk/artikler/DIY_skab.htm. Farven bliver hvis med høj glans. Malingen er en hvid dyrup 2-1 akrylmaling glans 50, hvor der tilsidst kommer skibslak på. Dette skulle gerne give en meget høj glans og gøre malingen mere resistans mod saltvand.
Sumpen er lavet ud fra et 180 L akvastabil (http://www.tropefisk.dk/shop/effectline ... 7219p.html) - ja det hele skal jo passe sammen. Min lokale glas-pusher har skåret pladerne i de mål jeg har skulle bruge og pladerne er limet på med sort akvarie-silikone. Her er lidt billeder af sumpen:
Udstyr:
2x 250w hqi geisemann nova II (mangler 1 mere da jeg gerne vil have 3). (http://www.korallen.dk/product.asp?prod ... b=7&page=1)
1x Aquabee UP3000 (http://www.korallen.dk/product.asp?prod ... =16&page=1)
1x AquaMedic Turboflotor 1000 multi skummer (http://www.akvarieudstyr.dk/netshop/sho ... ?pid=36872)
1x Aqualight nitratfilter (http://www.korallen.dk/product.asp?product=935&sub=9)
1x Solaris lampe til sump (http://www.korallen.dk/product.asp?prod ... b=7&page=1)
2x Tunze Stream 6100 (http://www.korallen.dk/product.asp?prod ... =16&page=1)
1x Tunze Mulitcontroller (http://www.korallen.dk/product.asp?product=967&sub=16)
1x Sander ozon c100 (http://www.korallen.dk/product.asp?product=271&sub=17)
1x Aquamedic mV computer (http://www.akvarieudstyr.dk/netshop/sho ... ?pid=36912)
1x Deltec fosfat Filter FR 509 (http://petsupply.dk/deltecfilterfr509-p-2391.html)
1x Deltec kalkreaktor (http://petsupply.dk/delteckalkreaktorp5 ... -2387.html)
1x De Bary 15W AN15 UV filter (http://www.debary.de/eng/index.htm)
' Opdateringer kommer snarest....
Info:
Selve akvariet er et 530L's akvastabil (http://www.tropefisk.dk/shop/effectline ... 7222p.html), Mål (l x b x h): 160x55x60 cm. Selve bordet er lavet at porsa aluminiumsrør (akvarieudstyr.dk). Stellet er blevet malet med hvid spraymaling. Rundt om aluminiumsstellet skal der påsættes MDF-plader.
Selve møblet kommer til at ligne det her: http://www.koralrevet.dk/artikler/DIY_skab.htm. Farven bliver hvis med høj glans. Malingen er en hvid dyrup 2-1 akrylmaling glans 50, hvor der tilsidst kommer skibslak på. Dette skulle gerne give en meget høj glans og gøre malingen mere resistans mod saltvand.
Sumpen er lavet ud fra et 180 L akvastabil (http://www.tropefisk.dk/shop/effectline ... 7219p.html) - ja det hele skal jo passe sammen. Min lokale glas-pusher har skåret pladerne i de mål jeg har skulle bruge og pladerne er limet på med sort akvarie-silikone. Her er lidt billeder af sumpen:
Udstyr:
2x 250w hqi geisemann nova II (mangler 1 mere da jeg gerne vil have 3). (http://www.korallen.dk/product.asp?prod ... b=7&page=1)
1x Aquabee UP3000 (http://www.korallen.dk/product.asp?prod ... =16&page=1)
1x AquaMedic Turboflotor 1000 multi skummer (http://www.akvarieudstyr.dk/netshop/sho ... ?pid=36872)
1x Aqualight nitratfilter (http://www.korallen.dk/product.asp?product=935&sub=9)
1x Solaris lampe til sump (http://www.korallen.dk/product.asp?prod ... b=7&page=1)
2x Tunze Stream 6100 (http://www.korallen.dk/product.asp?prod ... =16&page=1)
1x Tunze Mulitcontroller (http://www.korallen.dk/product.asp?product=967&sub=16)
1x Sander ozon c100 (http://www.korallen.dk/product.asp?product=271&sub=17)
1x Aquamedic mV computer (http://www.akvarieudstyr.dk/netshop/sho ... ?pid=36912)
1x Deltec fosfat Filter FR 509 (http://petsupply.dk/deltecfilterfr509-p-2391.html)
1x Deltec kalkreaktor (http://petsupply.dk/delteckalkreaktorp5 ... -2387.html)
1x De Bary 15W AN15 UV filter (http://www.debary.de/eng/index.htm)
' Opdateringer kommer snarest....
Senest rettet af sejeulki fre 8. aug 2008 14:06, rettet i alt 4 gange.
Re: Sejeulkis 530L's (opdateret 19. maj)
Wow - det kalder jeg noget af et setup. Det bliver spændende at følge dit projekt. Har du købt akvariet brugt her på siden? Synes jeg kan kende et par af stumperne 
- sejeulki
- Dragefisk

- Reactions: 0
- Indlæg: 742
- Tilmeldt: fre 30. nov 2007 22:52
- 18
- Postnummer: 9000 Aalborg
- Geografisk sted: Aalborg
Re: Sejeulkis 530L's (opdateret 19. maj)
Akvariet er købt her på siden af Leon Jensen. De forskellige dele er købt rundt omkring. Måske det du kan genkende er dele fra StarF's tidligere 490L akvarie. Det har jeg pt. kørende indtil mit 530L's kommer op at køre.
Re: Sejeulkis 530L's (opdateret 19. maj)
Det er i hvert ceeeewl nok - bliver spændende at se flere billeder når der kommer lidt liv i 
BTW, har du regnet på, hvad det koster i drift?
Hvad vil du skyde på, at det hele står i; udstyr m.v.?
BTW, har du regnet på, hvad det koster i drift?
Hvad vil du skyde på, at det hele står i; udstyr m.v.?
- sejeulki
- Dragefisk

- Reactions: 0
- Indlæg: 742
- Tilmeldt: fre 30. nov 2007 22:52
- 18
- Postnummer: 9000 Aalborg
- Geografisk sted: Aalborg
Re: Sejeulkis 530L's (opdateret 19. maj)
Jeg tør ikke regne på det. Det er blevet lidt dyrere end jeg havde regnet med... Når man prøver at lave et estimat af hvad man bruge af penge på sådan et projekt er der altid et eller andet der mangler (pensler, sand til sump osv.). Skal prøve at regne på det til imorgen.
- Helena
- Rev haj

- Reactions: 0
- Indlæg: 2011
- Tilmeldt: fre 5. okt 2007 22:02
- 18
- Postnummer: 5240 Odense NØ
- Saltvand siden?: 2007
- Geografisk sted: Odense NØ
Re: Sejeulkis 530L's (opdateret 19. maj)
Du gør da noget ved det.Tror du det er en god ide at regne på det
Jeg vil slet ikke vide havd jeg har brugt på mit indtil videre.
Ingen vand i stuen, men overvejer næste træk.
- Hvam
- Rev haj

- Reactions: 0
- Indlæg: 4736
- Tilmeldt: ons 12. okt 2005 12:58
- 20
- Postnummer: 8541 Skødstrup
- Saltvand siden?: 2005
- Geografisk sted: Skødstrup "Uptown"
Re: Sejeulkis 530L's (opdateret 19. maj)
Skibslakken giver et lidt Gul/brunligt skær på den hvide maling!
ellers hvis du skal have rigtig flotte resultater med skibslak skal du bruge EPIFernes det letter at få helt blank, det kan du også på ved den skibshandel der ligger næsten ved siden af dig
ellers hvis du skal have rigtig flotte resultater med skibslak skal du bruge EPIFernes det letter at få helt blank, det kan du også på ved den skibshandel der ligger næsten ved siden af dig
Når fatter er sur og vranten og gnaven, skal han blot have lidt ekstra kræs i maven!
Nyt 860l projekt www.saltvandsforum.dk/viewtopic.php?t=15941&highlight=
Mit opdært af klovne www.saltvandsforum.dk/viewtopic.php?f=3&t=30935
Nyt 860l projekt www.saltvandsforum.dk/viewtopic.php?t=15941&highlight=
Mit opdært af klovne www.saltvandsforum.dk/viewtopic.php?f=3&t=30935
- sejeulki
- Dragefisk

- Reactions: 0
- Indlæg: 742
- Tilmeldt: fre 30. nov 2007 22:52
- 18
- Postnummer: 9000 Aalborg
- Geografisk sted: Aalborg
Re: Sejeulkis 530L's (opdateret 19. maj)
Okay det var da rart at vide Hvam. Så nemlig en MDF plade i sort (meget mat) som havde fået skibslak og den skinnede totalt - men havde ikke tænkt på, at man kunne få en gullig farve med hvid. Hvad hed den skibslak helt præcis (har prøvet at google den uden resultat). Vil også gerne vide om hvor man kan købe den. Du snakkede om en skibs-butik ude i vest-byen? Angående pris så ligger det samlede udgift omkring de 20.000 - her er lidt hurtigt købmandsregning:
Akvarie 1000 (brugt)
Nyt PVC 800 (nyt)
Porsarør 1000 (nyt)
Skummer 800 (brugt)
Osmosekar 100 (nyt)
mV computer 1000 (brugt)
UV filter 550 (filter brugt pære ny)
Fosfatfilter 1000 (ny)
Kalkreaktor + CO2 2000 (brugt)
Pumper 2400 (brugt)
HQI lys 2400 (brugt)
Sump 300 (brugt)
Glas til sump 400 (nyt)
Sand akvarie 800 (nyt)
Sand sump 200 (nyt)
Pensler 200 (nyt)
Maling 800 (nyt)
MDF plader 1200 (nyt)
Ozon 1500 (nyt)
Multicontroller 1500 (nyt)
Totalt ca. 20.000 kr. Levende sten, fisk, koraller osv kommer ved siden af men det har jeg pt- kørende i et andet akvarie. Måske 20.000 kr. lyder af meget, men jeg har købt det lidt ad gangen og syntes det er lidt sjovt at gå at bygge sit eget (så får man det jo som man vil have det).
Akvarie 1000 (brugt)
Nyt PVC 800 (nyt)
Porsarør 1000 (nyt)
Skummer 800 (brugt)
Osmosekar 100 (nyt)
mV computer 1000 (brugt)
UV filter 550 (filter brugt pære ny)
Fosfatfilter 1000 (ny)
Kalkreaktor + CO2 2000 (brugt)
Pumper 2400 (brugt)
HQI lys 2400 (brugt)
Sump 300 (brugt)
Glas til sump 400 (nyt)
Sand akvarie 800 (nyt)
Sand sump 200 (nyt)
Pensler 200 (nyt)
Maling 800 (nyt)
MDF plader 1200 (nyt)
Ozon 1500 (nyt)
Multicontroller 1500 (nyt)
Totalt ca. 20.000 kr. Levende sten, fisk, koraller osv kommer ved siden af men det har jeg pt- kørende i et andet akvarie. Måske 20.000 kr. lyder af meget, men jeg har købt det lidt ad gangen og syntes det er lidt sjovt at gå at bygge sit eget (så får man det jo som man vil have det).
- Hvam
- Rev haj

- Reactions: 0
- Indlæg: 4736
- Tilmeldt: ons 12. okt 2005 12:58
- 20
- Postnummer: 8541 Skødstrup
- Saltvand siden?: 2005
- Geografisk sted: Skødstrup "Uptown"
Re: Sejeulkis 530L's (opdateret 19. maj)
Skibslak
Du kan købe den her: http://maps.google.com/maps?f=q&hl=da&g ... 14&iwloc=A
Det er vel ikke langt fra dig
Du kan købe den her: http://maps.google.com/maps?f=q&hl=da&g ... 14&iwloc=A
Det er vel ikke langt fra dig
- Vedhæftede filer
-
- IMG_5521.JPG (29.02 KiB) Vist 3088 gange
Når fatter er sur og vranten og gnaven, skal han blot have lidt ekstra kræs i maven!
Nyt 860l projekt www.saltvandsforum.dk/viewtopic.php?t=15941&highlight=
Mit opdært af klovne www.saltvandsforum.dk/viewtopic.php?f=3&t=30935
Nyt 860l projekt www.saltvandsforum.dk/viewtopic.php?t=15941&highlight=
Mit opdært af klovne www.saltvandsforum.dk/viewtopic.php?f=3&t=30935
Re: Sejeulkis 530L's (opdateret 19. maj)
20.000 lyder meget rimeligt - nok en god idé at købe brugt og over tid, som du har gjort. Hvad tror du driften vil lægge på? Du kan nok høre, at jeg samler informationer til engang jeg selv (forhåbentligt) kan opgradere mit RSM 
- sejeulki
- Dragefisk

- Reactions: 0
- Indlæg: 742
- Tilmeldt: fre 30. nov 2007 22:52
- 18
- Postnummer: 9000 Aalborg
- Geografisk sted: Aalborg
Re: Sejeulkis 530L's (opdateret 19. maj)
Har selv opgraderet fra et RSM
Har købt en el-måler jeg nok lige skal få koblet på når det kører så skal jeg nok skrive, hvad det koster at have sådan et akvarie kørende. Hvornår regner du med at opgradere?
Re: Sejeulkis 530L's (opdateret 19. maj)
Host host... når (hvis) min kone kommer til at dele passionen med mig 
Vi er ret glade for vores RSK - det er et ganske pænt møbel i vores øjne. Men det er klart; vi ville foretrække at have baljen stående i stuen (hvilket er totalt udelukket med RSM'et trods flere støjreduktionstiltag).
Alfa omega er lyd og omkostninger (etablering og drift - mest drift...).
Vi er ret glade for vores RSK - det er et ganske pænt møbel i vores øjne. Men det er klart; vi ville foretrække at have baljen stående i stuen (hvilket er totalt udelukket med RSM'et trods flere støjreduktionstiltag).
Alfa omega er lyd og omkostninger (etablering og drift - mest drift...).
- sejeulki
- Dragefisk

- Reactions: 0
- Indlæg: 742
- Tilmeldt: fre 30. nov 2007 22:52
- 18
- Postnummer: 9000 Aalborg
- Geografisk sted: Aalborg
Re: Sejeulkis 530L's (opdateret 19. maj)
Min kæreste deller heldigvis min hobby med mig. Desværre er udgifterne ikke 50:50 endnu... Det er helt sikkert at mit akvarie (og de fleste andre 'store' baljer LARMER MINDRE end et RSM. Vil dog våge at påstå, at du godt kan få et RSM relativ lysløs (erstatning af skummer med tunze+silencer, papstblæser i låget eller anden lampe osv.). Du har vel set min tråd om RSM (Red Sea Max for Dummies) der er der flere brugere på forumet, der kommer med gode råd. Vil også sige, at man ikke behøver alt det her udstyr (nogen vil sikkert sige mig imod
) til at starte med. Osmolator, kalkreaktor, ozon, UV osv. er jo til for at lette arbejdet og få klarer vand. Mange personer kører med meget mindre teknik fx: god skummer i indvendigt overløb, MANGE levende sten, Caulerpa Taxifolia i akvariet - ja og måske T5 (kommer jo an på hvilke koraler man vil have). Så kan det gøres relativ billigt og omkostningerne falder drastisk når man ikke har alt det teknik koblet til og lader biologien klare rensningen. Lydniveauet sænket jo også...
gladere kæreste/kone.
Re: Sejeulkis 530L's (opdateret 19. maj)
Ja, helt enig - fed tråd du har lavet i øvrigt. Den har jeg - og har stadig - meget glæde af!
Jeg har lyddæmpet mit RSM på følgende måde:
- 17 db blæsere i låget
OMG det gør en forskel!
- Gummi O-ringe mellem de to udblæser pumper
- Gummi O-ring på skummerstuds
- Gummilister i låget
- Lydisolerende (tyndt) materiale på skabslåge, bagside af akvarie, skabshylde, inderside af låg
- Stor gummimåtte under hele baduljen
- Elastikker rundt om skummer
- Elastikker rundt om pumpe til nitratfilter
- Elastikker rundt om blæsere i låg
+ alt det jeg har glemt, småjusteringer etc.
Summa summarum; det larmer stadig for meget til stuen. Det er primært skummeren der er synderen. Har forsøgt mig med at lægge lidt skumgummi under den, men gik væk fra det, da det nemt bliver umuligt at lukke låget helt (skummeren rager for højt op) - frygter derudover at skumgummi bliver til en nitrit/nitrat bombe over tid.
Jeg har overvejet at skifte skummeren, men har set mindst ligeså mange dårlige anbefalinger som gode, hvad det angår. Så er stadig lidt usikker på om jeg vil kaste en plovmand efter det forsøg.
Derudover har jeg overvejet at skifte de to udblæsningspumper ud med en større med samme kapacitet. Den vil jeg så hænge lige over filterposen med keramik og forbinde med et T-stykke, som igen munder ud i to udblæsningsslanger. Jeg mangler dog at finde ud af hvor man køber stumper - eksempelvis plaststumper med gevind der passer til monteringsboltene ved udblæsningen osv.
Hvor meget eller lidt kommer dit nye setup til at larme i forhold til RSM'et?
Jeg har lyddæmpet mit RSM på følgende måde:
- 17 db blæsere i låget
- Gummi O-ringe mellem de to udblæser pumper
- Gummi O-ring på skummerstuds
- Gummilister i låget
- Lydisolerende (tyndt) materiale på skabslåge, bagside af akvarie, skabshylde, inderside af låg
- Stor gummimåtte under hele baduljen
- Elastikker rundt om skummer
- Elastikker rundt om pumpe til nitratfilter
- Elastikker rundt om blæsere i låg
+ alt det jeg har glemt, småjusteringer etc.
Summa summarum; det larmer stadig for meget til stuen. Det er primært skummeren der er synderen. Har forsøgt mig med at lægge lidt skumgummi under den, men gik væk fra det, da det nemt bliver umuligt at lukke låget helt (skummeren rager for højt op) - frygter derudover at skumgummi bliver til en nitrit/nitrat bombe over tid.
Jeg har overvejet at skifte skummeren, men har set mindst ligeså mange dårlige anbefalinger som gode, hvad det angår. Så er stadig lidt usikker på om jeg vil kaste en plovmand efter det forsøg.
Derudover har jeg overvejet at skifte de to udblæsningspumper ud med en større med samme kapacitet. Den vil jeg så hænge lige over filterposen med keramik og forbinde med et T-stykke, som igen munder ud i to udblæsningsslanger. Jeg mangler dog at finde ud af hvor man køber stumper - eksempelvis plaststumper med gevind der passer til monteringsboltene ved udblæsningen osv.
Hvor meget eller lidt kommer dit nye setup til at larme i forhold til RSM'et?
- thyme
- Rev haj

- Reactions: 0
- Indlæg: 2852
- Tilmeldt: lør 21. okt 2006 22:55
- 19
- Postnummer: 8210 Århus V
- Saltvand siden?: 2007
- Geografisk sted: Århus V
- Kontakt:
Re: Sejeulkis 530L's (opdateret 19. maj)
Tråden tager vist en drejning 
Men kan man ikke bare komme en luftskummer i?
Man kan rimelig nemt lydisolere en luftpumpe. Det kræver dog man har osmolator hvis den skal køre ordentligt. Men efter min mening skal man også have sådan en, det letter virkelig dagligdagen!
Men kan man ikke bare komme en luftskummer i?
Man kan rimelig nemt lydisolere en luftpumpe. Det kræver dog man har osmolator hvis den skal køre ordentligt. Men efter min mening skal man også have sådan en, det letter virkelig dagligdagen!
Senest rettet af thyme tirs 20. maj 2008 15:31, rettet i alt 1 gang.
VH
Brian Thyme
120 liter. Ikke så mange digidarer, kun en masse bøvl

http://www.saltvandsforum.dk/viewtopic.php?t=10961
Brian Thyme
120 liter. Ikke så mange digidarer, kun en masse bøvl

http://www.saltvandsforum.dk/viewtopic.php?t=10961
- sejeulki
- Dragefisk

- Reactions: 0
- Indlæg: 742
- Tilmeldt: fre 30. nov 2007 22:52
- 18
- Postnummer: 9000 Aalborg
- Geografisk sted: Aalborg
Re: Sejeulkis 530L's (opdateret 19. maj)
'man kan ikke bare komme en luftskummer i'? Hvem snakker om luftskummer...-du har tilgengæld ret i at tråden tager en drejning (men det er sku hyggeligt alligevel). Kan godt se Lars, at du har gjort en del for at få det lykkedes. Hvis det er skummeren, der larmer (det var det også ved mig) så syntes jeg du skal overveje at købe en brugt tunze doc nano skummer brugt herinde. Den må du kunne få til en 500 kr. Desværre skal den også modificeres lidt (skummerkoppen reduceres) og luftindtaget skal køres igennem en silencer ellers larmer det alt for meget. Kører med denne skummer i mit nano akvarie og det larmer ihvertfald mindre en min aquabee up1000 retur. Vil sige lydniveauet for mit store er 1/3 del af mit RSM (det genere ihvertfald ikke kæresten og hun kan godt være sart) - der er jo også flere muligheder for lydisolering og modifikationer i et stort akvarie. Fx er min returpumpe sat på en blåfiltersvamp (bare dette sænker lyden meget). Denne mulighed har man desværre ikke i et RSM. Har du læst den tråd om lydisolering? Mener man blev lidt enige om gulvtæpper var et billigt og godt materiale til lysisolering. Men helt sikkert var skummeren + blæser i låget synderen ved mig. Da jeg skiftede blæserne i låget - ja der larmede skummer bare mere
.
- thyme
- Rev haj

- Reactions: 0
- Indlæg: 2852
- Tilmeldt: lør 21. okt 2006 22:55
- 19
- Postnummer: 8210 Århus V
- Saltvand siden?: 2007
- Geografisk sted: Århus V
- Kontakt:
Re: Sejeulkis 530L's (opdateret 19. maj)
Jeg snakker om luftskummer. Og hvorfor skulle man ikke kunne det egentlig?
VH
Brian Thyme
120 liter. Ikke så mange digidarer, kun en masse bøvl

http://www.saltvandsforum.dk/viewtopic.php?t=10961
Brian Thyme
120 liter. Ikke så mange digidarer, kun en masse bøvl

http://www.saltvandsforum.dk/viewtopic.php?t=10961
- sejeulki
- Dragefisk

- Reactions: 0
- Indlæg: 742
- Tilmeldt: fre 30. nov 2007 22:52
- 18
- Postnummer: 9000 Aalborg
- Geografisk sted: Aalborg
Re: Sejeulkis 530L's (opdateret 19. maj)
Ups... det er mig der er dum. Troede du skrev: Man kan IKKE komme en luftskummer i og ikke KAN man ikke komme en luftskummer i? - beklager. Tror faktisk det bliver svært at finde en luftskummer til et RSM - der er jo låg på...
- sejeulki
- Dragefisk

- Reactions: 0
- Indlæg: 742
- Tilmeldt: fre 30. nov 2007 22:52
- 18
- Postnummer: 9000 Aalborg
- Geografisk sted: Aalborg
Re: Sejeulkis 530L's (opdateret 4. juni)
Så er der kommet nye bundplader i, bagbeklædning. Både bundplader og bagbeklædningen er malet hvid med skibslak udenpå, således, at det kan holde til når jeg spilder lidt saltvand på det. I bagbeklædningen er der monteret luftudtag således luften kan komme ud. I underskabet er kalkreaktor, nitratfilter og Co2 placeret til venstre. Fosfatfilter til i retur-kammer. Nu mangler jeg bare UV og så min ferskvandsakvarie, der skal stå i højre side. Fisk og koraller er så småt begyndt at komme i. Sand kommer i idag...
-
RedSea
- Rev Papegøje fisk

- Reactions: 0
- Indlæg: 936
- Tilmeldt: søn 14. okt 2007 16:56
- 18
- Postnummer: 2791 Dragør
- Saltvand siden?: 2007
- Geografisk sted: Dragør, Amager
Re: Sejeulkis 530L's (opdateret 4. juni)
er der forskellige pærer i hver side??? ellers ser det supergodt ud
... intet vand i stuen for tiden ...
- Anette
- Dragefisk

- Reactions: 0
- Indlæg: 798
- Tilmeldt: man 28. jan 2008 08:15
- 18
- Postnummer: 8700 Horsens
- Saltvand siden?: 2007
- Geografisk sted: Horsens
Re: Sejeulkis 530L's (opdateret 4. juni)
Hej Jonas
Det ser sgu godt ud, vi er helt vilde med din systematik.
Vi er igang med at opbygge en sump og synes at din er meget godt på det vi har i tankerne. Har du nogen tegninger mv?
Mvh
Anette og Kristoffer
Det ser sgu godt ud, vi er helt vilde med din systematik.
Vi er igang med at opbygge en sump og synes at din er meget godt på det vi har i tankerne. Har du nogen tegninger mv?
Mvh
Anette og Kristoffer
Mvh Anette og Kristoffer
- sejeulki
- Dragefisk

- Reactions: 0
- Indlæg: 742
- Tilmeldt: fre 30. nov 2007 22:52
- 18
- Postnummer: 9000 Aalborg
- Geografisk sted: Aalborg
Re: Sejeulkis 530L's (opdateret 4. juni)
Ja jeg kan godt lave en tegning til jer - I skal også være velkommen til at komme at se den (I bor jo ikke så langt væk). Har også en masse link til sumpe, hvis det er. Kender også en god/billig glar-mester, hvis i skal have skåret nogle plader til jeres sump...
- sejeulki
- Dragefisk

- Reactions: 0
- Indlæg: 742
- Tilmeldt: fre 30. nov 2007 22:52
- 18
- Postnummer: 9000 Aalborg
- Geografisk sted: Aalborg
Re: Sejeulkis 530L's (opdateret 4. juni)
Så er der kommet sand i baljen. Hvid Oolitic: http://petsupply.dk/caribseaoceandirect ... -4223.html. Jeg har også monteret 2*39 watt t5 rør i midten med en 22.000 kelvin rør og en fiji pink. Det gør korallerne meget flottere og klare farver. Stadigvæk har jeg to forskellige pærer i mine 2 HQI lamper men når jeg får min sidste HQI lampe, som skal sidde i midten regner jeg med at smide 250W 12.000K Reeflux pærer i alle tre lamper. Lidt pics fra akvariet...
- Carsten
- Rev haj

- Reactions: 10
- Indlæg: 35611
- Tilmeldt: tirs 1. jun 2004 22:51
- 21
- Postnummer: 3650 Ølstykke
- Saltvand siden?: 1976
- Geografisk sted: 3650 Ølstykke
Re: Sejeulkis 530L's (opdateret 7. juni)
Det ser jo ganske fornuftigt ud, men der er lige et par ting jeg ville rette op op.
Den store grønne Calustrea, ser ud til at kunne vælte ned ved den mindste bevægelse, hvis du drejer den 90 grader, er tyngdepunktet længere nede og den er mere stabil.
den lila Montipora som du har placeret øverst oppe i midten, lider under det samme. Derud over skal du være opmærksom på at
den normalt vokser ret hurtigt og hurtigt kommer til at skygge for andre koraller neden under. Plus det fakta, at det med tiden kan være noget besværligt at komme ned til bunden af akvariet, fordi den breder sig i toppen.
den plads den har i akvariet, passer bedre til en meget lyskrævende Acropora. Montiporaen er ikke så krævende.
Den store grønne Calustrea, ser ud til at kunne vælte ned ved den mindste bevægelse, hvis du drejer den 90 grader, er tyngdepunktet længere nede og den er mere stabil.
den lila Montipora som du har placeret øverst oppe i midten, lider under det samme. Derud over skal du være opmærksom på at
den normalt vokser ret hurtigt og hurtigt kommer til at skygge for andre koraller neden under. Plus det fakta, at det med tiden kan være noget besværligt at komme ned til bunden af akvariet, fordi den breder sig i toppen.
den plads den har i akvariet, passer bedre til en meget lyskrævende Acropora. Montiporaen er ikke så krævende.
- Helena
- Rev haj

- Reactions: 0
- Indlæg: 2011
- Tilmeldt: fre 5. okt 2007 22:02
- 18
- Postnummer: 5240 Odense NØ
- Saltvand siden?: 2007
- Geografisk sted: Odense NØ
Re: Sejeulkis 530L's (opdateret 7. juni)
Ser rigtig godt ud, dit vand ser meget klart ud 
Ingen vand i stuen, men overvejer næste træk.
- sejeulki
- Dragefisk

- Reactions: 0
- Indlæg: 742
- Tilmeldt: fre 30. nov 2007 22:52
- 18
- Postnummer: 9000 Aalborg
- Geografisk sted: Aalborg
Re: Sejeulkis 530L's (opdateret 7. juni)
det er meget klart og mit redox potentiale er normalt på 440 mV. Det undrer mig lidt det er så højt, hvilket vil sige, at der aldrig bliver tilført ozon, da min mV computer er sat til at tilføre ozon, hvis redox-potentialet kommer under 380 mV.
-
nielsk
- Jeg støtter Saltvandsforum.dk

- Reactions: 409
- Indlæg: 3868
- Tilmeldt: tirs 28. mar 2006 17:06
- 20
- Postnummer: 8520 Lystrup
- Saltvand siden?: 2006
Re: Sejeulkis 530L's (opdateret 7. juni)
Fed stensætning og fine sten. Kommer til at give en suveræn bagvæg om et halv år når alt er vokset godt til i kalkalger og forhåbentligt koraller 
SPS : Stability provides succes

