Skummer & sump hjælp

Forum for alle der er nye indenfor hold af saltvandsakvarie.
Besvar
kristian
Klovnfisk
Klovnfisk
Reactions: 0
Indlæg: 99
Tilmeldt: lør 19. sep 2009 08:39
16
Postnummer: 2730 Herlev
Saltvand siden?: 2014
Geografisk sted: Herlev (stor KBH)

Skummer & sump hjælp

#1

Indlæg af kristian »

Hey

Jeg Ville gerne lige vide lidt mere om min sump eller retter sagt min skummer (som jeg skal have købt til mit akvarie).

Jeg er elendig til søge funktionen.

Jeg ville gerne vide hvos stor en sump jeg skal bruge til mit akvarie.
Jeg har et på 280L
og skal have en sump der er 86L (bliver det for småt?)

Hvor stor en skummer skal jeg bruge til det så?

Mit bord er ikke det støreste der hvor sumpen kan stå. Det måler 75L x 61H x 47D

Så hvad jeg kan se får jeg lidt problemer med min skummer da det ikke er særlig højt
Den ene Deltec jeg har kigget på er 60 høj
der bliver ikke meget plads til og få den ud nå den skal renses.

Men igen kommer vel også an på hvilken skummer det er.

Har kigget på:
Deltec udvendig skummer APH 525.den her måler 28 x 21 x 52,5 cm.
Deltec udvendig skummer AP 600.den her måler 28 x 21 x 60 cm. (Total højde i skabet for at man kan rense skummeren m.m. 84 cm).
ATI BubbleMaster 200 Protein Skimmer. den her måler 33 x 22 x 53 cm.

Der står ikke total højde på de andre, men 2 af dem er jo så lige det mindre end det jeg skrev.

Nogen der kan give et godt råd?
Med venlig hilsen

Kristian. S. Hansen.
Brugeravatar
AcroFarm DK
Palet kirurg
Palet kirurg
Reactions: 0
Indlæg: 206
Tilmeldt: tors 22. apr 2010 07:04
15
Postnummer: 2400 København NV
Saltvand siden?: 2003
Geografisk sted: København
Kontakt:

Re: Skummer & sump hjælp

#2

Indlæg af AcroFarm DK »

Både Deltec APH 525 og BubbleMaster vil være glimrende bud til en balje i den størrelse. Fordelen ved Deltec er dog, at den kan stå udenfor sumpen, således du får mere plads i denne til eksempelvis et refugium.

Jeg har vedhæftet en tegning over hvordan min egen sump på 80 liter var indrettet til min 250 l. balje. Denne kørte perfekt med en Deltec AP600 stående ved sidenaf.
Vedhæftede filer
Sump-1.JPG
Mvh. Mads (-fisk)
mads@acrofarm.dk
Tlf. 22 82 44 72
[center]Billede[/center]
[center]Produktion, opsætning og pasning af saltvandsakvarier...[/center]
kristian
Klovnfisk
Klovnfisk
Reactions: 0
Indlæg: 99
Tilmeldt: lør 19. sep 2009 08:39
16
Postnummer: 2730 Herlev
Saltvand siden?: 2014
Geografisk sted: Herlev (stor KBH)

Re: Skummer & sump hjælp

#3

Indlæg af kristian »

ok
jamen mange tak. Såvil jeg kigge lidt mere på det engang.

Sumpen kommer til og være 70x35x35 et 85L

hvor hvis vi tager fra venstre side og frem af

Den første del skal være 20cm bred (hvor retur pumpen skal stå).
Anden del skal være 10cm bred (til og fange bubbles med).
nr 3 rum skal være sidste 40cm skal der være levende sten og muligvis skummer hvis ikke jeg vælger deltec´s.

er dette en god ide med sumpen?
hvis ikke kom gerne med hvorfor og hvordan jeg skal lave den ordenlig så.
Med venlig hilsen

Kristian. S. Hansen.
Brugeravatar
andersla
Picasso aftrækker
Picasso aftrækker
Reactions: 0
Indlæg: 609
Tilmeldt: tirs 5. dec 2006 18:10
18
Postnummer: 6580 Vamdrup
Geografisk sted: vamdrup
Kontakt:

Re: Skummer & sump hjælp

#4

Indlæg af andersla »

du kunne også bruge saltvandsbutikkens byg selv skummer det er er den samme som bubblemaster 250
kristian
Klovnfisk
Klovnfisk
Reactions: 0
Indlæg: 99
Tilmeldt: lør 19. sep 2009 08:39
16
Postnummer: 2730 Herlev
Saltvand siden?: 2014
Geografisk sted: Herlev (stor KBH)

Re: Skummer & sump hjælp

#5

Indlæg af kristian »

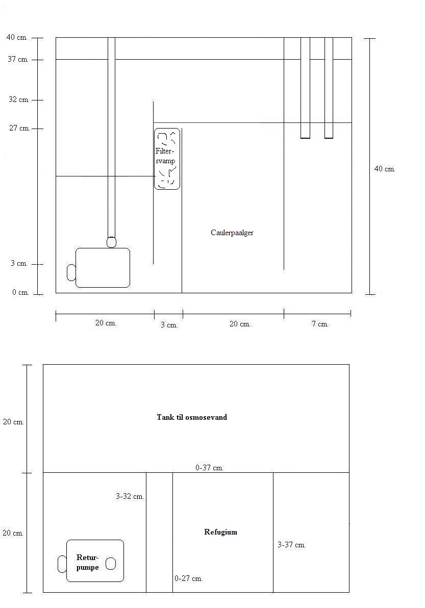
Hey

Jeg har siddet og lavet en tegning over sumpen som den kommer til og se ud vil gerne have lidt input på den hvis folk er så venlige med det.

Billede

Fra venstre side med rørne.
1 rør er påfyldning på akvariet.
2 rør er vand der kommer ned fra akvariet.
3 rør er vand der kommer ned fra akvariet.

så har vi i sumpen som kan ses ferskvands påfyldning (kommer sener da pengene knipper :wink: )
men ellers i det store rum kommer der til og ligge levende sten. Så kommer der buble trap til alle de små bubles.
og til sidst min retur pumpe.

Har jeg fattet det rigtig eller er jeg skæv.
Jeg ved ikke rigtig om jeg skal have skummer i eller ude for sumpen.
Men hvis jeg vælger og tage den i sumpen skal jeg så lave et extra rum til stenene?
eller kan de ligge i sammen rum som sumpen?
Med venlig hilsen

Kristian. S. Hansen.
kristian
Klovnfisk
Klovnfisk
Reactions: 0
Indlæg: 99
Tilmeldt: lør 19. sep 2009 08:39
16
Postnummer: 2730 Herlev
Saltvand siden?: 2014
Geografisk sted: Herlev (stor KBH)

Re: Skummer & sump hjælp

#6

Indlæg af kristian »

Hey

Kom lige på noget andet også.

Mad til sådan nogle små/store fisk, kan de spise normal flagefoder?

Nu tænker jeg lidt Sera?
Har nemlig noget Sera vipan, men der står intet på det, eller der står det er godt til alle pryd fisk.

eller er der special saltvands flagefoder til dem?
Mener nok JBL laver lidt er det rigtig?
Med venlig hilsen

Kristian. S. Hansen.
kristian
Klovnfisk
Klovnfisk
Reactions: 0
Indlæg: 99
Tilmeldt: lør 19. sep 2009 08:39
16
Postnummer: 2730 Herlev
Saltvand siden?: 2014
Geografisk sted: Herlev (stor KBH)

Re: Skummer & sump hjælp

#7

Indlæg af kristian »

Hey

Nå min sump kommer til og være 110L i stedet for 86L.

Har fåer plads til et. Nu skal jeg bare have lavet et bord uden om mit porsa bord.
Med venlig hilsen

Kristian. S. Hansen.
Besvar

Tilbage til "Ny i faget?"